Bản vẽ nhà cấp 4 gác lửng là sự thể hiện chi tiết những thông số kỹ thuật cũng như bố cục sắp xếp không gian của công trình nhà ở. Xây nhà có gác lửng đẹp hiện nay đang được khá nhiều người ưa chuộng với nhiều ý tưởng độc đáo. Trong số những mẫu nhà gác lửng đẹp hiện nay thì nhà cấp 4 gác lửng được lựa chọn nhiều hơn. Vì kiến trúc có độ thông dụng cao, ít bị lỗi thời mà chi phí bỏ ra cũng rất phải chăng.
Bài viết sau đây, hãy cùng Tôn Pomina tìm hiểu về những lưu ý khi thiết kế bản vẽ và tham khảo những mẫu nhà cấp 4 gác lửng đẹp nhất hiện nay.
Nhà cấp 4 gác lửng đang là xu hướng thiết kế được ưa chuộng
1. NHỮNG LƯU Ý KHI THIẾT KẾ BẢN VẼ NHÀ CẤP 4 GÁC LỬNG ĐẸP
Bản vẽ nhà cấp 4 gác lửng sẽ có rất nhiều yếu tố liên quan và bắt buộc phải tuân theo những nguyên tắc cũng như cách sắp xếp và sử dụng các loại ký hiệu. Thông thường, nếu các bản vẽ được các công ty chuyên về xây dựng thực hiện sẽ gồm có những nội dung cơ bản sau:
-
Phần ghi chú: Nội dung điều chỉnh, lần nộp, ngày nộp
-
Tên địa chỉ, tên chủ đầu tư, chức danh nếu có
-
Tên dự án và địa chỉ xây dựng dự án
-
Tên công trình
-
Tên đơn vị thiết kế, địa chỉ, chức danh, ghi rõ họ tên, ký, đóng dấu công ty
-
Hạng mục thực hiện: Kiến trúc dự án, kết cấu hay điện nước
-
tên của bản vẽ
-
Số hợp đồng dự án
-
Giai đoạn thực hiện dự án
-
Năm hoàn thành dự án
-
Tỷ lệ bản vẽ
-
Ký hiệu bản vẽ
Không gian phòng khách rất rộng, thoáng trong thiết kế nhà cấp 4 gác lửng
Đặc biệt, tỷ lệ bản vẽ được xem là yếu tố rất quan trọng. Bản vẽ sẽ cho thấy mối tương quan giữa kích thước biểu diễn so với số đo thực tế. Việc lựa chọn tỷ lệ cũng như quy đổi chúng có ảnh hưởng lớn đến việc đo đạc, ứng dụng vào thi công. Những tỷ lệ này trong xây dựng được phân loại như sau:
-
Tỉ lệ 1:1000 đến 1:500: áp dụng cho trường hợp cần tổng quan về công trình và vị trí của nó trong mạng lưới đô thị. Ưu điểm của tỷ lệ này là làm nổi bật các cơ sở hạ tầng và các thành phần khác.
-
Tỉ lệ 1:250 đến 1:200: áp dụng tập trung cho mặt cắt, mặt bằng và mặt đứng trong các tòa nhà lớn. Thậm chí thông qua tỷ lệ có thể xem xét đến các thành phần không gian và bố cục.
-
Tỉ lệ từ 1:150 đến 1:100: có thể cân nhắc sử dụng cho các phương pháp tiếp cận đầu tiên của các công trình nhỏ. Nếu trường hợp áp dụng cho các tòa nhà hay công trình lớn, kiến trúc sư sẽ dự tính các bản vẽ và mô hình chi tiết hơn.
-
Tỉ lệ 1:75 đến 1:25: sử dụng cho những kết cấu, bố cục cũng như sự liên hệ giữa các tầng hoặc có thể phóng to các phòng để chi tiết hơn các thành phần cụ thể, ví dụ như chi tiết đến hệ thống ống nước, điện.
-
Tỷ lệ 1:20 và 1:10: tỉ lệ thể hiện cho đồ nội thất, trình bày các thành phần cũng như cấu trúc, thể hiện chi tiết của bản vẽ.
Những vấn đề này, gia chủ có thể tham khảo ý kiến của các chuyên gia, những người có chuyên môn và kinh nghiệm. Từ đó để có được cho mình bản vẽ phù hợp nhất.
2. 3 MẪU BẢN VẼ NHÀ CẤP 4 GÁC LỬNG ĐẸP ĐƯỢC SƯU TẦM
2.1. Bản vẽ 1
Với diện tích 4×12, đây là bản vẽ nhà cấp 4 gác lửng hoàn hảo và lý tưởng cho những sự hạn hẹp về quỹ đất. Mặc dù nhỏ nhưng ngôi nhà được sẽ có bố gọn gàng, khoa học. Phần gác lửng xây lùi ra sau sẽ tạo thêm khoảng không gian thoáng đãng cho căn phòng khách. Mái được làm chóp cao giúp tăng hiệu quả cách nhiệt cho tầng lửng căn nhà.
-
Tầng trệt được thiết kế dùng làm phòng khách, bếp cùng phòng ăn, khu vệ riêng riêng lẻ.
-
Mặt bằng tầng lửng được thiết kế có 2 phòng ngủ, 1 phòng vệ sinh chung và đủ không gian sinh hoạt cho một gia đình nhỏ từ 2 – 4 người.
Mẫu bản vẽ nhà cấp 4 gác lửng 1
Mẫu nhà này thường tận dụng không gian rất hiệu quả và hợp lý. Dù không gian nhỏ nhưng có bố trí đầy đủ công năng cũng như tiện nghi trong quá sinh hoạt của gia đình.
>Xem thêm: Bật mí của chủ thầu 9 cách chống nóng cho nhà cấp 4 mái tôn
2.2. Bản vẽ 2
Nhỉnh hơn một chút về chiều sâu là bản vẽ nhà cấp 4 gác lửng có kích thước 4×16. Đây cũng là gợi ý phù hợp cho những ai đang tìm kiếm nhà gác lửng nhỏ đẹp. Mẫu nhà cấp 4 có gác lửng này được thiết kế theo phong cách đơn giản và lấy phong cách hiện đại làm chủ đạo. Hệ thống cửa sử dụng chất liệu kính giúp ngôi nhà thêm sang trọng và đón được ánh sáng tự nhiên. Đồng thời tạo được điểm nhấn cho mặt tiền của căn nhà.
Mẫu bản vẽ nhà cấp 4 gác lửng 2
Mặt bằng tầng trệt ngôi nhà được bố trí lần lượt gồm khoảng sân trước, tiếp đó đến phòng khách, phòng bếp kết hợp phòng ăn, nhà vệ sinh và sân phơi. Khu vực cầu thang có thiết kế tiểu cảnh là một hồ nước. Vị trí này tạo điểm nhấn cho ngôi nhà, giúp thanh lọc không khí, tạo nguồn năng lượng tích cực theo góc nhìn phong thủy. Với thiết kế này, tầng trệt của ngôi nhà là sẽ không gian sinh hoạt chung của các thành viên trong gia đình.
Mẫu bản vẽ nhà cấp 4 gác lửng 3
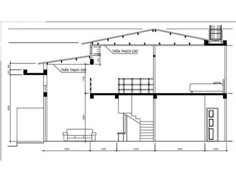
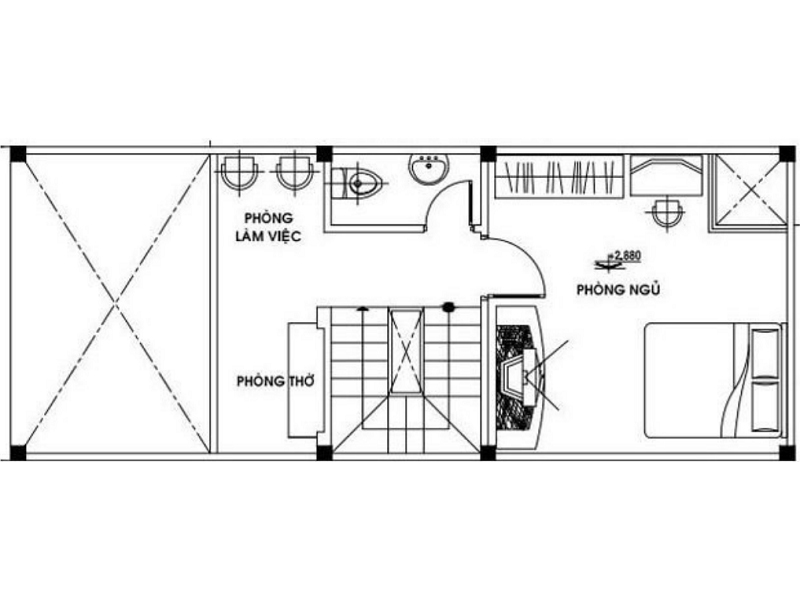
2.3. Bản vẽ 3
Đây là bản vẽ nhà cấp 4 có gác lửng đẹp phổ biến và được ưa chuộng nhất hiện nay. Với kích thước thường thấy là 5×15, rất thích hợp cho các công trình nhà ở vùng ven hoặc ngay cả khi xây dựng trong quỹ đất hạn hẹp. Với kiểu nhà này, gia chủ có thể kết hợp cùng mái tôn, mái ngói, mái thái hoặc mái bằng đều phù hợp và có tính thẩm mỹ cao. Quý khách có thể tham khảo các sản phẩm tôn lợp mái tại Tôn Pomina để sử dụng cho căn nhà của mình.
Mặt bằng trệt
Mặt bằng công năng của tầng trệt sẽ gồm: Sân trước, phòng khách, phòng bếp và phòng ăn, phòng ngủ và nhà vệ sinh chung kết hợp sân phơi đồ. Không gian ở tầng trệt được phân chia một cách hợp lý với những khu vực sinh hoạt chung. Trong khi phòng ăn, phòng bếp và phòng khách được bố trí liền kề nhau giúp tối ưu diện tích sử dụng. Thì phòng ngủ, nhà vệ sinh và sân phơi đồ được bố trí ở phía sau, vừa riêng tư, vừa tách biệt và kín đáo.
Mặt bằng lửng
Trên đây là một số chia sẻ của Tôn Pomina về những lưu ý khi thiết kế bản vẽ nhà cấp 4 gác lửng cùng với 3 mẫu thiết kế phổ biến nhất hiện nay. Hy vọng sẽ cung cấp cho bạn đọc những thông tin hữu ích, chúc quý khách lựa chọn được cho gia đình mình bản vẽ ưng ý nhất.
Công ty Cổ Phần Tôn Pomina
- Địa chỉ: Khu công nghiệp Phú Mỹ 1, Phường Phú Mỹ, Thành phố Hồ Chí Minh
- Số điện thoại: 02543895118
- Hotline: 0906687917
- Email: info@pomina-flat-steel.com









